
Quedelhaus – Ihr neues Medizinzentrum in Quedlinburg
Moderne Praxis- und Gesundheitsflächen mit flexiblen Grundrissen – individuell auf Ihre Anforderungen zugeschnitten.
Ihr Praxisstandort Quedelhaus
An der Albert-Schweitzer-Straße 35 entsteht das Quedelhaus: ein zeitgemäßes Medizinzentrum mit Praxis-, Diagnostik- und Serviceflächen. Die Raumaufteilungen werden gemeinsam mit unseren Architekten auf die Bedürfnisse der zukünftigen Mieter abgestimmt – von der Einzelpraxis bis zur Praxisgemeinschaft.
Das Quedelhaus bietet die Infrastruktur, die Sie für einen zeitgemäßen Praxisbetrieb benötigen: Auf zwei Etagen entstehen klar strukturierte Flächen mit Empfang, Wartebereichen, Behandlungs- und Arztzimmern sowie Personal- und Nebenräumen.
Die historische Bestandsvilla ist als Einzeldenkmal ausgewiesen und wird durch einen modernen Erweiterungsbau ergänzt – so entsteht ein repräsentativer, zugleich effizienter Praxisstandort. Alle Einheiten sind barrierefrei erschlossen.

Ein Haus für moderne Medizin – für Ihre Praxis gedacht
Praxisflächen nach Ihren Anforderungen

Unterschiedliche Praxisgrößen für Haus- und Fachärzte, MVZ, Therapie oder Gesundheitsdienstleister
Sinnvolle Raumstrukturen mit Anmeldebereich, Wartezonen sowie Behandlungs- und Funktionsräumen
Die gezeigten Grundrisse sind bewusst als Ideenskizzen gedacht. Jede Einheit kann in Zuschnitt, Raumaufteilung und Ausstattung an Ihr medizinisches Leistungsspektrum angepasst werden – von der Hausarztpraxis über fachärztliche Versorgung bis hin zu Therapie- oder MVZ-Strukturen.
Das Quedelhaus ist darauf ausgelegt, Ihnen langfristige Planungssicherheit und eine hohe Aufenthaltsqualität für Ihr Team und Ihre Patienten zu bieten.
Flächen für Diagnostik und ergänzende Angebote

Berücksichtigung spezieller Anforderungen, z. B. für medizintechnische Geräte, Hygiene- oder Lagerflächen
Ausbau, Materialwahl und Detaillierung in enger Abstimmung mit Ihnen und Ihren Architekten
Im Quedelhaus ist ein eigener Bereich für medizinische Diagnostik vorgesehen, der sich flexibel an die Anforderungen Ihrer Fachrichtung anpassen lässt – etwa für Funktionsdiagnostik, Vorsorgeuntersuchungen oder therapeutische Anwendungen. Ergänzende Gesundheitsflächen bieten Raum für medizinische Dienstleistungen oder Fachhandel.
So entsteht ein Gesundheitsstandort, an dem sich unterschiedliche Leistungen sinnvoll ergänzen.
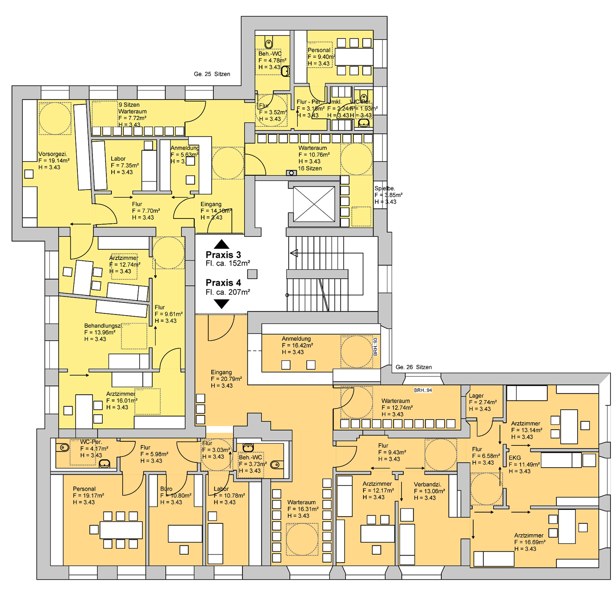
Grundrisse
Der dargestellte Grundriss ist eine unverbindliche Planungsidee. Aufteilung, Größe und Ausstattung werden individuell abgestimmt.

Beispiel – Praxis
Ihre Vorteile als Mieter im Quedelhaus
Grundrisse nach Maß
Planung und Anpassung der Flächen in Zusammenarbeit mit Architekten
Moderne Gebäudetechnik
Effiziente Ausstattung für wirtschaftliche Nebenkosten und ein angenehmes Raumklima
Barrierefreies Medizinzentrum
Barrierefreie Erschließung und behindertengerechte WCs für einen zugänglichen Praxisbetrieb
Starker Standort
für Ihre Praxis
Gute Anbindung an den Verkehr und eine großzügige Parkplatzsituation
Gesundheit. Raum. Quedlinburg.
Ein Standort, der zu Ihren Patienten passt
Das Quedelhaus entsteht in der Albert-Schweitzer-Straße 35 in 06484 Quedlinburg – in einem etablierten Wohn- und Versorgungsumfeld mit guter Erreichbarkeit. Für Ihre Patienten bedeutet das kurze Wege und eine gut auffindbare Adresse, für Sie und Ihr Team ein attraktives Arbeitsumfeld in der UNESCO-Welterbestadt Quedlinburg.
Flächenanfrage und Beratung
Fordern Sie unverbindlich unser Exposé an und sprechen Sie mit uns über mögliche Grundriss- und Ausbauvarianten. Gemeinsam entwickeln wir einen Standort, der zu Ihrer Praxisstrategie passt.
Mit * markierte Felder müssen ausgefüllt werden, um das Formular abzuschicken.




